Aluminium glass doors from Vertech 1700 Series
Les portes d'aluminium vitrées de la série 1700 de Vertech sont un assemblage extra-robuste qui vous offre des performances inégalées. La série 1700 dispose de plusieurs modèles à battants larges ainsi que de nombreux modèles de porte isolée.
Toutes les portes d'aluminium Vertech sont d'alliage 6063-T5, avec des parcloses à enclenchement. Les sections sont assemblées, mortaisées et soudées aux quatre coins, et une tige en acier insérée et boulonnée à l'intérieur de la traverse du bas complète l'assemblage.
Les portes vitrées de Vertech sont garanties contre tous défauts des matériaux pour un an à compter de la date d'acceptation des travaux.
-
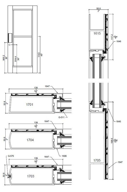
- Dimensions d'ouverture : 26 3/16" x 72" (665 mm x 1830 mm).
- Épaisseur de la porte 1 3/4".
- Largeur des montants 4 5/8".
- Hauteur de la traverse du haut 3 3/4".
- Hauteur de la traverse du bas 6 15/16".
- Assemblage mortaisé et soudé avec cornières integrées.
- Moulures a pression.
- Vis d'ajustement dans la traverse du haut.
- Tige continue en acier dans traverse du bas.
- Parclose optionelle #1606 pour vitrage double scellé 7/8".

- Dimensions d'ouverture : 26 3/16" x 72" (665 mm x 1830 mm).
- Porte isolée.
- Épaisseur de la porte 2".
- Largeur des montants 5 1/2".
- Hauteur de la traverse du haut 4 5/8".
- Hauteur de la traverse du bas 7 13/16".
- Assemblage mortaisé et soudé avec cornieres integrées.
- Moulures a pression.
- Vis d'ajustement dans traverse du haut.
- Tige continue en acier dans la traverse du bas.
- Pour vitrage double scellé 7/8".

Veuillez noter que les couleurs peuvent légèrement varier selon la calibration de votre écran. Pour tous renseignements supplémentaires, veuillez nous contactez.
Anodisé clair
Anodisé bronze léger
Anodisé brunPour en savoir plus à propos des normes de sécurité incendie, veuillez cliquer ici.1700
- Dimensions d'ouverture : 26 3/16" x 72" (665 mm x 1830 mm).
- Épaisseur de la porte 1 3/4".
- Largeur des montants 4 5/8".
- Hauteur de la traverse du haut 3 3/4".
- Hauteur de la traverse du bas 6 15/16".
- Assemblage mortaisé et soudé avec cornières integrées.
- Moulures a pression.
- Vis d'ajustement dans la traverse du haut.
- Tige continue en acier dans traverse du bas.
- Parclose optionelle #1606 pour vitrage double scellé 7/8".

1750
- Dimensions d'ouverture : 26 3/16" x 72" (665 mm x 1830 mm).
- Porte isolée.
- Épaisseur de la porte 2".
- Largeur des montants 5 1/2".
- Hauteur de la traverse du haut 4 5/8".
- Hauteur de la traverse du bas 7 13/16".
- Assemblage mortaisé et soudé avec cornieres integrées.
- Moulures a pression.
- Vis d'ajustement dans traverse du haut.
- Tige continue en acier dans la traverse du bas.
- Pour vitrage double scellé 7/8".

Sens d'ouverture

Couleurs
Veuillez noter que les couleurs peuvent légèrement varier selon la calibration de votre écran. Pour tous renseignements supplémentaires, veuillez nous contactez.
Anodisé clair
Anodisé bronze léger
Anodisé brunNormes de sécurité incendie
Pour en savoir plus à propos des normes de sécurité incendie, veuillez cliquer ici.










